自建房想要漂亮又實用?推薦幾款二層別墅,造價經濟戶型好!
經常遇到客戶來咨詢農村自建房要幾層好?或者說建什么樣的比較實用耐看,那么我們給出的就會建議二層最適合。其實農村實用的好戶型,首選的還是兩層的建筑,一來房子建的太高家里空蕩蕩的,一點人氣也沒有;二來建得太高太大的房子在整體造價上肯定不便宜,也就偏離了經濟適用的標準。那么今天就來看看幾款造價經濟戶型實用的二層自建別墅吧!
編號: DC0054
層數: 二層
結構形式: 磚混結構
主體造價: 20-25萬
開間: 11.34米
進深: 13.31米
占地面積: 136.40平方米
建筑面積: 254.44平方米




一 層: 客廳、臥室(附衛生間)、臥室、儲藏室、廚房、餐廳、衛生間
二 層: 休息區(附陽臺)、臥室(附衛生間)、2臥室、書房、衛生間
頂 層: 露臺
編號: DC0136
層數: 二層
結構形式: 磚混結構
主體造價: 16-20萬
開間: 15.9米
進深: 7.8米
占地面積: 114.65平方米
建筑面積: 201.43平方米


一 層: 客廳、2臥室、廚房、餐廳、衛生間
二 層: 客廳、臥室(附書房,衛生間)、臥室、衛生間、露臺
編號: DC0053
層數: 二層
結構形式: 磚混結構
主體造價: 18-24萬
開間: 11.6米
進深: 13.5米
占地面積: 119.14平方米
建筑面積: 215.74平方米



一 層: 客廳、2臥室、廚房、餐廳、農具房、衛生間、庭院
二 層: 起居室(附陽臺)、2臥室、衛生間、露臺
三 層: 露臺
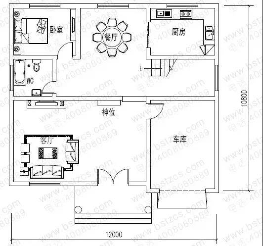
編號: DC0022
層數: 二層
結構形式: 磚混結構
主體造價: 19-24萬
開間: 12米
進深: 10.8米
占地面積: 130.23平方米
建筑面積: 260.46平方米


一 層: 客廳、臥室、廚房、餐廳、衛生間、車庫
二 層: 客廳(附陽臺)、主臥(附衛生間)、3臥室、棋牌室、衛生間
編號: DC0283
層數: 二層
結構形式: 磚混結構
主體造價: 20-25萬
開間: 11米
進深: 9.6米
占地面積: 112.72平方米
建筑面積: 257.77平方米


一 層: 堂屋、客廳、2臥室、廚房、餐廳、衛生間
二 層: 客廳(附陽臺)、臥室(附書房)、3臥室、衛生間
編號: DC0244
層數: 二層
結構形式: 磚混結構
主體造價: 15-20萬
開間: 10米
進深: 10米
占地面積: 101.92平方米
建筑面積: 198.08平方米


一 層: 客廳、臥室、廚房、餐廳、衛生間、車庫
二 層: 客廳、臥室(附陽臺)、臥室(附衣帽間)、臥室、衛生間
二三十萬,或許在一些小縣城只能買一個幾十平的房子,在二三線城市剛夠交一個首付,在北京、上海、廣州、深圳這些一線城市或許只能買一個廁所,但是在農村,你就能建一個這樣經濟實用的小別墅,是不是很棒呢?
.jpg)
本文由別墅圖紙超市編輯發布,如需了解更多,可登錄網站主頁http://www.timrich.com.cn/,或者撥打我們的免費電話400-8080-889在線咨詢。
>>>>推薦閱讀:精選6款高品質農村別墅,養老住家最佳之選!
>>>>推薦閱讀:7款框架結構的二層別墅設計,空間靈活造型美關鍵還抗震!
>>>>推薦閱讀:精選8款造價25萬左右農村自建別墅,花最少的錢建最好的房子!